Villa a schiera d'angolo in vendita

Missaglia, Via madonnina - Maresso
€ 345.000
4 locali 4 locali
155 Mq 155 Mq
3 bagni 3 bagni

Villa a schiera d'angolo in vendita

Missaglia, Via madonnina - Maresso

Descrizione annuncio

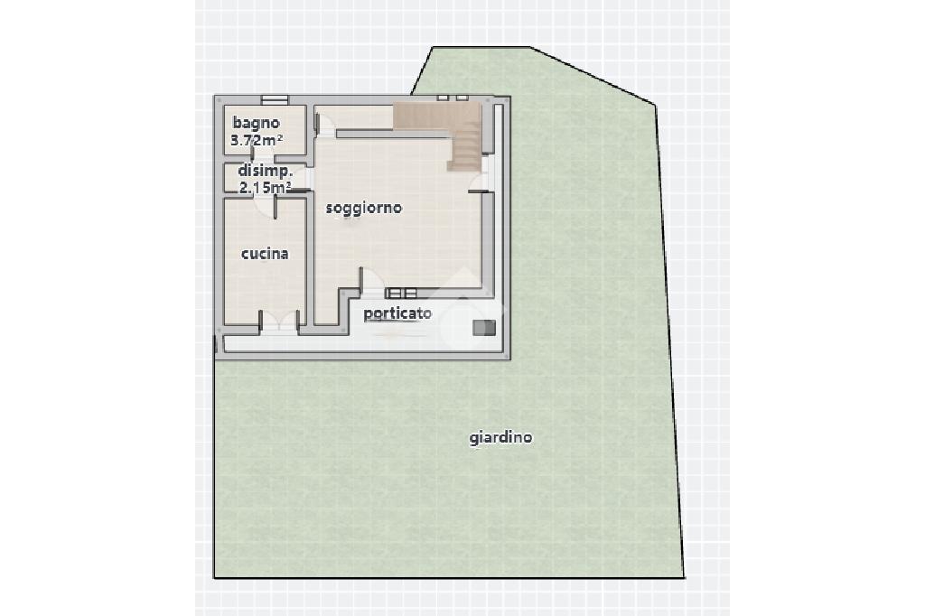
Missaglia - In contesto residenziale tranquillo e immerso nel verde, proponiamo in vendita una villa a schiera di testa con ampio giardino privato, ideale per chi desidera vivere in un ambiente sereno senza rinunciare alla comodità degli spazi.

Edificata nel 2000 e mantenuta con cura nel tempo, la proprietà si presenta in ottimo stato di conservazione.

Uno dei principali punti di forza è l'ampio giardino privato che circonda la casa su due lati, perfetto per pranzi all'aperto, momenti di relax, giochi per bambini o per chi ama dedicarsi al verde. L'accesso principale avviene proprio attraverso il giardino, che introduce all'abitazione.

All'interno troviamo un luminoso soggiorno con doppio affaccio sul giardino, una cucina abitabile con uscita diretta all'esterno e un bagno di servizio al piano terra.

La zona notte, raggiungibile tramite una comoda scala in muratura, si compone di una camera matrimoniale, una seconda camera e una terza stanza con accesso a un grande terrazzo vivibile, ideale per colazioni all'aperto o per godere della tranquillità del quartiere. Completa il piano un ampio bagno con vasca.

Al piano interrato si sviluppa una spaziosa taverna con camino, perfetta come sala hobby, zona relax o ambiente per accogliere ospiti. Presenti inoltre un locale lavanderia e un box doppio in larghezza con accesso diretto all'abitazione.

Una soluzione completa, luminosa e versatile, ideale per famiglie che desiderano indipendenza, comfort e spazi verdi in un contesto riservato ma ben servito.

Per tutelare la privacy dei nostri clienti vi informiamo che le informazioni e i valori presenti nell'annuncio sono puramente indicativi e/o paragonabili ad immobili con caratteristiche simili e non costituiscono, in alcun modo, elemento contrattuale. Le informazioni dettagliate e specifiche dell'immobile verranno fornite in agenzia.

L'agenzia Tecnocasa di Missaglia, sita in Via Merlini grazie al continuo impegno, alla determinata voglia di crescere ed all'ineguagliabile professionalità del suo intero staff, riesce ad offrire ogni giorno ai propri clienti disponibilità e dedizione.

Il nostro team è composto da più professionisti pronti a mettersi quotidianamente a vostra disposizione per una consulenza immobiliare, per una valutazione gratuita del vostro immobile, un aggiornamento continuo sulle case in vendita ed in locazione per coloro che lasciano una richiesta d'acquisto e di locazione ed un'assistenza fino alla sottoscrizione del rogito notarile di compravendita.

Ulteriore servizio offerto dal nostro gruppo è una consulenza mutuo gratuita grazie alla collaborazione con la società Kiron, appartenente al Gruppo Tecnocasa e leader nel settore creditizio, mettendo a disposizione del cliente un professionista in grado di poterlo consigliare e, se richiesto, gestire la sua pratica tramite convenzioni esclusive con decine di istituti bancari.

Nessuno può garantirvi una conoscenza del mercato immobiliare più approfondita e dettagliata.

Cercaci anche su Facebook e Instagram: Gruppo Tecnocasa Missaglia!

Mostra tutto

Nelle vicinanze

Trasporto pubblico Trasporto pubblico
Trasporto pubblico
540 m
Via San Fermo - Via degli Ulivi (Missaglia)
Via San Fermo - Via degli Ulivi (Missaglia)
1,4 Km
Osnago
Osnago
2,7 Km
Scuole Scuole
Scuola primaria Aldo Moro
60 m
Scuole
1,5 Km
Scuola Media Statale Leonardo Da Vinci
2,1 Km
Civica Scuola di Musica
2,4 Km
Scuola media statale "Maria Gaetana Agnesi"
3,0 Km
Farmacia Farmacia
Farmacia San Paolo
290 m
Farmacia Fantoni
1,8 Km
Farmacia Schiavi dottor Enos
2,6 Km
Supermercati Supermercati
Unes
1,8 Km
U2 Supermercati
2,7 Km
Negozi Negozi
Meremarket
370 m
Panificio Cazzaniga
370 m
Alimentari Molla
1,3 Km
Negozi
2,5 Km
Bar Bar
Bar
2,1 Km
Ristoranti Ristoranti
Ristoranti
1,2 Km
Cafè Mania
1,6 Km
Agriturismo Cascina Casarigo
1,7 Km
Al Galeazzino
2,0 Km
Ristorante Tricudai
2,1 Km
Mostra tutto

Caratteristiche

Rif.:
61124404
Piano:
Su più livelli di 1
Totale piani:
1
Box:
2
Terrazzi:
1
Camere da letto:
3
Mostra tutto
Prezzo Prezzo
€ 345.000
Rata mutuo Rata mutuo
€ 1.639 / mese
Spese annue Spese annue
€ 100
Proponi il tuo prezzoProponi il tuo prezzo

Classe Energetica

G
G
G
G
G
G
G
G
G
EP globale non rinnovabile:
190.10 kW h/m² anno
EP globale rinnovabile:
0.00 kW h/m² anno
EP invernale del fabbricato:
EP estiva del fabbricato:
Anno di costruzione:
2000
Riscaldamento:
Autonomo
Tipo impianto:
A radiatori
Tipo alimentazione:
Metano

Ti interessa visionare l'immobile?

Fissa un appuntamento  Fissa un appuntamento

Richiedi informazioni

Clicca su Leggi per aprire l'informativa
* Questi campi sono obbligatori

Calcola il tuo mutuo

Semplice e senza impegno
Anticipo

( % )
Mutuo

( % )

pochi semplici passi

inserisci i tuoi dati
Questionario completato
Grazie per aver richiesto un appuntamento senza impegno con un nostro Consulente del Credito e Assicurativo.

Hai inserito correttamente tutti i dati necessari e a breve riceverai una e-mail con un link da convalidare per inviare i tuoi dati.
Affiliato
Eureka Sas
Via Merlini , 18 23873 Missaglia (LC)

Il nostro staff


  • Antonio Roseto
    Affiliato

  • Maria Immacolata Gangemi
    Coordinatrice

  • Jessica Scordamaglia
    Coordinatrice

  • Giulia Minosi
    Collaboratrice

  • Emma Rusconi
    Collaboratrice

  • Deborah Rossi
    Coordinatrice
Via Merlini , 18 23873 Missaglia (LC)
Zona: Missaglia - Monticello Brianza
Mostra su mappa
Orari: Lunedì - Venerdì: 09:00 - 12:30 / 14:30 - 19:30 Sabato: 09:00 - 15:00
Affiliato
Eureka Sas
Via Merlini , 18 23873 Missaglia (LC)

2026 Tecnocasa Franchising S.p.A. - P. IVA 08365160152 - Via Monte Bianco 60/A 20089 Rozzano (MI). Ogni agenzia ha un proprio titolare ed è autonoma. Privacy policy | Policy utilizzo | Cookie policy