Rustico in vendita

Missaglia, Cascina Maressoletto - Maresso
€ 46.000
4 locali 4 locali
220 Mq 220 Mq
2 bagni 2 bagni

Rustico in vendita

Missaglia, Cascina Maressoletto - Maresso

Descrizione annuncio

Missaglia – proponiamo in vendita rustico semi-indipendente da ristrutturare completamente, immerso nel verde

In contesto riservato e tranquillo, all’interno di un piccolo cortile e circondato dalla natura, proponiamo in vendita caratteristico rustico che necessita di importanti lavori di ristrutturazione.
La proprietà si presenta allo stato originario e richiede un intervento edilizio significativo, ideale per chi desidera realizzare un progetto personalizzato partendo da una struttura dal sapore autentico.

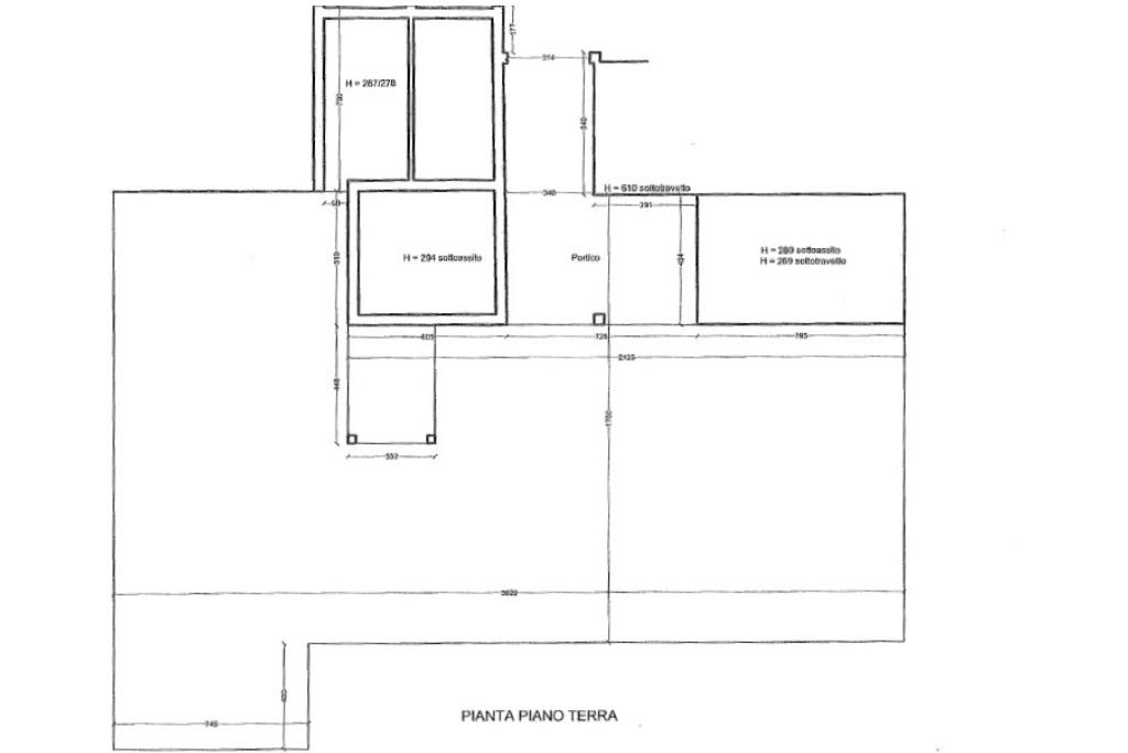
Il rustico è composto da più locali affacciati sul cortile e si sviluppa su una superficie complessiva di circa 220 mq, con possibilità di cambio di destinazione d’uso per la trasformazione in abitazione, previa verifica delle normative vigenti

A completare la proprietà, terreno di circa 440 mq, che offre ulteriori possibilità di valorizzazione: giardino, area verde privata, spazio relax o orto.

Soluzione rivolta a impresa, investitori o privati alla ricerca di un rustico da recuperare integralmente, in una posizione unica, immersa nel verde e lontana dal caos.

Opportunità interessante per chi cerca un immobile da ristrutturare e trasformare secondo le proprie esigenze.
Contattaci per maggiori informazioni e per valutare le potenzialità dell’intervento.

Per tutelare la privacy dei nostri clienti vi informiamo che le informazioni e i valori presenti nell'annuncio sono puramente indicativi e/o paragonabili ad immobili con caratteristiche simili e non costituiscono, in alcun modo, elemento contrattuale. Le informazioni dettagliate e specifiche dell'immobile verranno fornite in agenzia.

L'agenzia Tecnocasa di Missaglia, sita in Via Merlini grazie al continuo impegno, alla determinata voglia di crescere ed all'ineguagliabile professionalità del suo intero staff, riesce ad offrire ogni giorno ai propri clienti disponibilità e dedizione.

Il nostro team è composto da più professionisti pronti a mettersi quotidianamente a vostra disposizione per una consulenza immobiliare, per una valutazione gratuita del vostro immobile, un aggiornamento continuo sulle case in vendita ed in locazione per coloro che lasciano una richiesta d'acquisto e di locazione ed un'assistenza fino alla sottoscrizione del rogito notarile di compravendita.

Ulteriore servizio offerto dal nostro gruppo è una consulenza mutuo gratuita grazie alla collaborazione con la società Kiron, appartenente al Gruppo Tecnocasa e leader nel settore creditizio, mettendo a disposizione del cliente un professionista in grado di poterlo consigliare e, se richiesto, gestire la sua pratica tramite convenzioni esclusive con decine di istituti bancari.

La presenza costante ed in forma esclusiva sul Comune di Missaglia e di Monticello Brianza, ci ha consentito di acquisire una profonda conoscenza del mercato immobiliare locale basata su dati oggettivi di domanda, offerta e compravenduto reale solo ed esclusivamente in questi Comuni.

Nessuno può garantirvi una conoscenza del mercato immobiliare più approfondita e dettagliata.

Cercaci anche su Facebook e Instagram: Gruppo Tecnocasa Missaglia!

Mostra tutto

Nelle vicinanze

Trasporto pubblico Trasporto pubblico
Trasporto pubblico
160 m
Via San Fermo - Via degli Ulivi (Missaglia)
Via San Fermo - Via degli Ulivi (Missaglia)
1,8 Km
Osnago
Osnago
2,6 Km
Scuole Scuole
Scuola primaria Aldo Moro
360 m
Scuole
1,2 Km
Civica Scuola di Musica
2,4 Km
Scuola Media Statale Leonardo Da Vinci
2,5 Km
Farmacia Farmacia
Farmacia San Paolo
300 m
Farmacia Fantoni
2,0 Km
Farmacia Schiavi dottor Enos
2,9 Km
Supermercati Supermercati
Unes
2,0 Km
U2 Supermercati
3,0 Km
Esselunga della Cascina Levada
3,0 Km
Negozi Negozi
Panificio Cazzaniga
230 m
Meremarket
270 m
Alimentari Molla
1,7 Km
Negozi
2,2 Km
Bar Bar
Bar
1,7 Km
Ristoranti Ristoranti
Ristoranti
1,6 Km
Ristorante Tricudai
1,7 Km
Cafè Mania
1,9 Km
Agriturismo Cascina Casarigo
2,1 Km
Al Galeazzino
2,4 Km
Mostra tutto

Caratteristiche

Rif.:
61162239
Piano:
Su più livelli di 1
Totale piani:
1
Camere da letto:
3
Arredamento:
Assente
Condizionamento:
Assente
Mostra tutto
Prezzo Prezzo
€ 46.000
Rata mutuo Rata mutuo
€ 219 / mese
Spese annue Spese annue
€ 0
Proponi il tuo prezzoProponi il tuo prezzo

Classe Energetica

G
G
G
G
G
G
G
G
G
EP globale non rinnovabile:
210.90 kW h/m² anno
EP globale rinnovabile:
0.00 kW h/m² anno
EP invernale del fabbricato:
EP estiva del fabbricato:
Anno di costruzione:
1967
Riscaldamento:
Assente

Ti interessa visionare l'immobile?

Fissa un appuntamento  Fissa un appuntamento

Richiedi informazioni

Clicca su Leggi per aprire l'informativa
* Questi campi sono obbligatori

Calcola il tuo mutuo

Semplice e senza impegno
Anticipo

( % )
Mutuo

( % )

pochi semplici passi

inserisci i tuoi dati
Questionario completato
Grazie per aver richiesto un appuntamento senza impegno con un nostro Consulente del Credito e Assicurativo.

Hai inserito correttamente tutti i dati necessari e a breve riceverai una e-mail con un link da convalidare per inviare i tuoi dati.
Affiliato
Eureka Sas
Via Merlini , 18 23873 Missaglia (LC)

Il nostro staff


  • Antonio Roseto
    Affiliato

  • Maria Immacolata Gangemi
    Coordinatrice

  • Jessica Scordamaglia
    Coordinatrice

  • Giulia Minosi
    Collaboratrice

  • Emma Rusconi
    Collaboratrice

  • Deborah Rossi
    Coordinatrice
Via Merlini , 18 23873 Missaglia (LC)
Zona: Missaglia - Monticello Brianza
Mostra su mappa
Orari: Lunedì - Venerdì: 09:00 - 12:30 / 14:30 - 19:30 Sabato: 09:00 - 15:00
Affiliato
Eureka Sas
Via Merlini , 18 23873 Missaglia (LC)

2026 Tecnocasa Franchising S.p.A. - P. IVA 08365160152 - Via Monte Bianco 60/A 20089 Rozzano (MI). Ogni agenzia ha un proprio titolare ed è autonoma. Privacy policy | Policy utilizzo | Cookie policy