Bilocale in vendita

Missaglia, Via corte del moro - Campù Inferiore
€ 79.000
2 locali 2 locali
90 Mq 90 Mq
1 bagno 1 bagno

Bilocale in vendita

Missaglia, Via corte del moro - Campù Inferiore

Descrizione annuncio

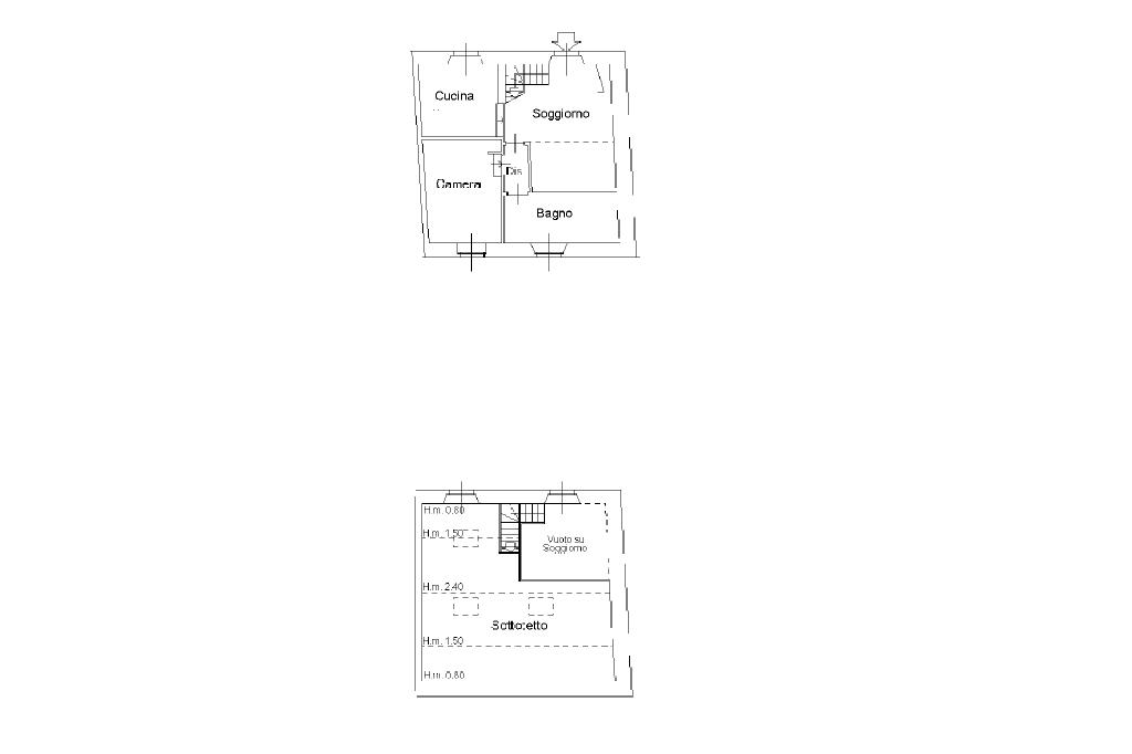
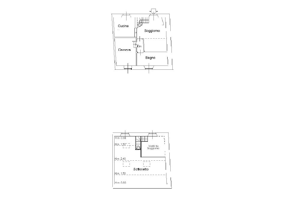
Missaglia - Frazione Bariano. Ampio bilocale con soppalco e cantina, senza spese condominiali.

All'interno di un contesto di corte proponiamo in vendita un ampio appartamento bilocale di 90 mq, posto al secondo ed ultimo piano.

La soluzione, che ha subito una ristrutturazione esterna nel 2002 e interna nel 2011, si distingue per la generosa metratura e la distribuzione funzionale degli spazi: l'ingresso apre direttamente su un soggiorno accogliente, ideale per ospitare sia la zona living sia la zona pranzo. La cucina, abitabile e arredata su due lati, risulta luminosa grazie alla presenza di una porta finestra.

La zona notte, separata da un disimpegno, ospita una spaziosa camera matrimoniale e un bagno completo di doccia e vasca idromassaggio.

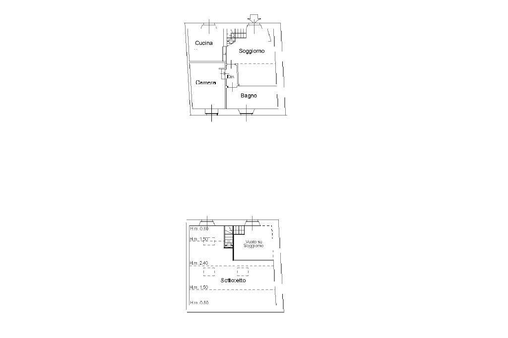
Elemento di grande valore aggiunto è il caratteristico soppalco di 55 mq, pavimentato in parquet, con altezze variabili da 2,40 m a 0,80 m. Accessibile tramite una comoda scala in muratura e illuminato da tre lucernari, rappresenta uno spazio versatile da destinare a zona hobby, studio o area relax, con affaccio sul soggiorno.

Completa la proprietà una pratica cantina

Un appartamento caratteristico che unisce comfort, funzionalità e il vantaggio di vivere in un contesto senza spese condominiali.

Contattaci subito per una visita!

Per tutelare la privacy dei nostri clienti vi informiamo che le informazioni e i valori presenti nell'annuncio sono puramente indicativi e/o paragonabili ad immobili con caratteristiche simili e non costituiscono, in alcun modo, elemento contrattuale. Le informazioni dettagliate e specifiche dell'immobile verranno fornite in agenzia.

L'agenzia Tecnocasa di Missaglia, sita in Via Merlini grazie al continuo impegno, alla determinata voglia di crescere ed all'ineguagliabile professionalità del suo intero staff, riesce ad offrire ogni giorno ai propri clienti disponibilità e dedizione.

Il nostro team è composto da più professionisti pronti a mettersi quotidianamente a vostra disposizione per una consulenza immobiliare, per una valutazione gratuita del vostro immobile, un aggiornamento continuo sulle case in vendita ed in locazione per coloro che lasciano una richiesta d'acquisto e di locazione ed un'assistenza fino alla sottoscrizione del rogito notarile di compravendita.

Ulteriore servizio offerto dal nostro gruppo è una consulenza mutuo gratuita grazie alla collaborazione con la società Kiron, appartenente al Gruppo Tecnocasa e leader nel settore creditizio, mettendo a disposizione del cliente un professionista in grado di poterlo consigliare e, se richiesto, gestire la sua pratica tramite convenzioni esclusive con decine di istituti bancari.

La presenza costante ed in forma esclusiva sul Comune di Missaglia e di Monticello Brianza, ci ha consentito di acquisire una profonda conoscenza del mercato immobiliare locale basata su dati oggettivi di domanda, offerta e compravenduto reale solo ed esclusivamente in questi Comuni.

Nessuno può garantirvi una conoscenza del mercato immobiliare più approfondita e dettagliata.

Cercaci anche su Facebook e Instagram: Gruppo Tecnocasa Missaglia!

Mostra tutto

Nelle vicinanze

Trasporto pubblico Trasporto pubblico
Corso Europa - Via Puccini (Missaglia)
Corso Europa - Via Puccini (Missaglia)
80 m
Corso Europa - Via Gorizia (Missaglia)
Corso Europa - Via Gorizia (Missaglia)
240 m
Scuole Scuole
Scuola Media Statale Leonardo Da Vinci
590 m
Scuola primaria Aldo Moro
1,6 Km
Civica Scuola di Musica
2,2 Km
Scuola media statale "Maria Gaetana Agnesi"
2,5 Km
Istituto Graziella Fumagalli
2,6 Km
Farmacia Farmacia
Farmacia Schiavi dottor Enos
1,2 Km
Farmacia San Paolo
1,6 Km
Farmacia Consonni
2,5 Km
Farmacia Fantoni
2,6 Km
Farmacia
2,8 Km
Supermercati Supermercati
U2 Supermercati
1,3 Km
Unes
2,4 Km
il Viaggiator Goloso
2,5 Km
CONAD
2,6 Km
LD Market Casatenovo
2,9 Km
Negozi Negozi
Alimentari Molla
850 m
Negozi
1,1 Km
Meremarket
1,7 Km
Panificio Cazzaniga
1,7 Km
Bar Bar
Pasticceria Gelateria Renzo
2,6 Km
Bar Guzzetti
2,7 Km
Bar Canarino
2,8 Km
Ristoranti Ristoranti
Cafè Mania
50 m
Ristoranti
990 m
Osteria degli Angeli
1,2 Km
Pizzeria Jasmine
1,5 Km
Agriturismo Cascina Casarigo
1,7 Km
Mostra tutto

Caratteristiche

Rif.:
61116099
Piano:
2 di 2 (ultimo Piano)
Camere da letto:
1
Arredamento:
Assente
Condizionamento:
Assente
Ascensore:
No
Mostra tutto
Prezzo Prezzo
€ 79.000
Rata mutuo Rata mutuo
€ 363 / mese
Spese annue Spese annue
€ 0
Proponi il tuo prezzoProponi il tuo prezzo

Classe Energetica

E
E
E
E
E
E
E
E
E
EP globale non rinnovabile:
125.53 kW h/m² anno
EP globale rinnovabile:
0.00 kW h/m² anno
EP invernale del fabbricato:
EP estiva del fabbricato:
Anno di costruzione:
1967
Riscaldamento:
Autonomo
Tipo impianto:
A radiatori
Tipo alimentazione:
Metano

Ti interessa visionare l'immobile?

Fissa un appuntamento  Fissa un appuntamento

Richiedi informazioni

* Questi campi sono obbligatori

Calcola il tuo mutuo

Semplice e senza impegno
Anticipo

( % )
Mutuo

( % )

pochi semplici passi

inserisci i tuoi dati
Questionario completato
Grazie per aver richiesto un appuntamento senza impegno con un nostro Consulente del Credito e Assicurativo.

Hai inserito correttamente tutti i dati necessari e a breve riceverai una e-mail con un link da convalidare per inviare i tuoi dati.
Affiliato
Eureka Sas
Via Merlini , 18 23873 Missaglia (LC)

Il nostro staff


  • Antonio Roseto
    Affiliato

  • Maria Immacolata Gangemi
    Coordinatrice

  • Jessica Scordamaglia
    Coordinatrice

  • Giulia Minosi
    Collaboratrice

  • Emma Rusconi
    Collaboratrice

  • Deborah Rossi
    Coordinatrice
Via Merlini , 18 23873 Missaglia (LC)
Zona: Missaglia - Monticello Brianza
Mostra su mappa
Orari: Lunedì - Venerdì: 09:00 - 12:30 / 14:30 - 19:30 Sabato: 09:00 - 15:00
Affiliato
Eureka Sas
Via Merlini , 18 23873 Missaglia (LC)

2025 Tecnocasa Franchising S.p.A. - P. IVA 08365160152 - Via Monte Bianco 60/A 20089 Rozzano (MI). Ogni agenzia ha un proprio titolare ed è autonoma. Privacy policy | Policy utilizzo | Cookie policy